Haus N Teil 03
Strohballen Solarhaus…
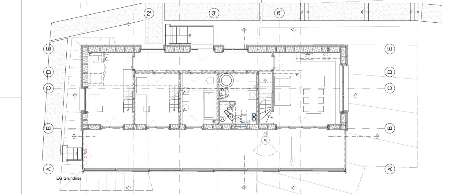
…Grundriss EG Raumaufteilung…
Die Raumaufteilung des Haus N gestaltet sich wie folgt:
Hauseingang über Zuwegung und Eingangspodest von Nordost, Zutritt zu Verteilerflur und Räume von Links nach Rechts: Zimmer 1 mit Hochbett, Zimmer 2 mit Hochbett, Bad, Hausanschlussraum/Hauswirtschaftsraum, und ganz rechts Küche/Wohnen mit Treppe zum OG.
Südwestlich vorgelagert, über die gesamte Länge des Hauses befindet sich der Wintergarten, alle Wohnräume sind mit grossen Fenstertüren auf Ihn ausgerichtet.
Der Wintergarten ist minimal gedämmt, die Schiebefenster an der Längsseite können zu 3/4teln zurückgeschoben werden, so ergibt sich im Sommer eine überdachte Terrasse. Ein Kaminofen kann in der kühlen Jahreszeit genutzt werden.
